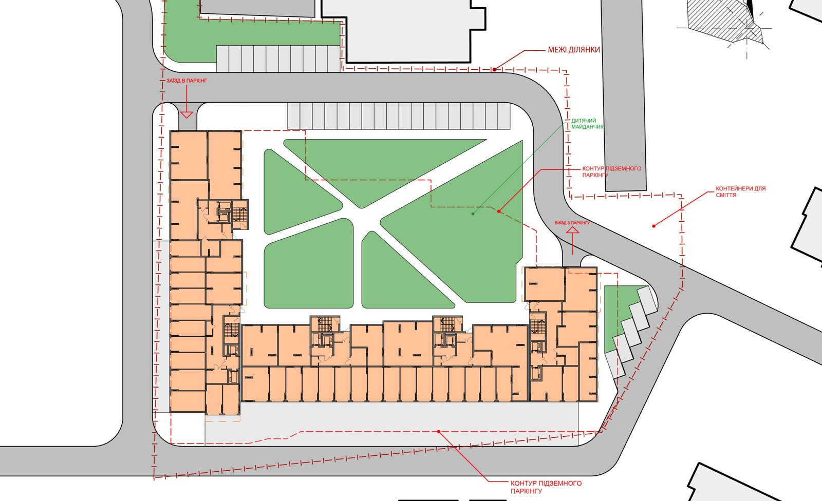
Green Side — це сучасний житловий комплекс, створений для тих, хто цінує спокій природи, безпеку родини та продуманість кожної деталі.
Комплекс розташований у тихій зеленій локації біля річки, де можна насолоджуватись тишею, не відмовляючись від зручностей міського життя. Архітектура Green Side поєднує природні відтінки, м’які лінії та функціональні рішення, що підкреслюють атмосферу рівноваги та гармонії.
У Green Side кожен квадратний метр продуманий для комфорту: сучасні планування квартир, зручна інфраструктура поруч і спокійна атмосфера — усе це формує житло, де хочеться залишатись надовго. Green Side — твоя тиха сторона міста.


Термін здачі комплексу:
II квартал 2028 року

Матеріали стін:
керамічний блок, повнотіла цегла

Вид утеплення:
пінополістирол

Висота стель:
2.8 м

Поверховість:
16 поверхів

Паркінг:
підземний, надземний гостьовий

Технологія будівництва:
монолітно-каркасна

Клас житла:
бізнес

Квартири:
1/2/3-кімнатні

К-сть квартир:
434

Тип опалення:
індивідуальне газове

Адреса:
вул. Джохара Дудаєва, Івано-Франківськ

Черг будівництва:
1

Розтермінування 1-ий варіант
Розтермінування 1-й варіант:
100% - повна оплата при підписанні договору
Розтермінування 2-ий варіант
Розтермінування 2-й варіант:
50% — перший внесок при укладанні договору
15% — другий внесок на середині 2026 року
15% — третій внесок на серединф 2027 року
20% — при введенні будинку в експлуатацію
Розтермінування 3-ий варіант
Розтермінування 3-ій варіант:
30% — перший внесок при укладанні договору
25% — другий внесок на середині 2026 року
25% — третій внесок на серединф 2027 року
20% — при введенні будинку в експлуатацію
Заповніть форму і ми вам відразу перетелефонуємо.
Ознайомлений з Політикою конфіденційності та даю згоду на збір та обробку своїх персональних даних.
Заповніть форму і ми вам відразу перетелефонуємо.
Ознайомлений з Політикою конфіденційності та даю згоду на збір та обробку своїх персональних даних.